工事:改修
用途:オフィス/ギャラリー/ショップ
場所:大阪
期間:2019.06-2019.08
階数:1階
構造:木造
施工:舩橋工務店
写真:大竹央祐
大阪市北区の本庄にある2軒の連なった長屋を、自分たちのオフィス兼イベントスペースへと改修したプロジェクトです。
この長屋は元々別の住居で、それらの間には裏側へつづく道が通っていたようです。いつしか道も含めて1つの家として住まわれていました。家具が散乱し、床や土壁ははがれ、柱は一部朽ちているような状態でした。
私たちは、2軒の長屋に元々あった道を再び通し、それぞれをまたぐように構造補強を入れ込みました。さらに、全体が連続するようにフラットな土間を敷き、縁側だった部分には屋根をかけて、大きな余白のような空間をつくりました。
大きな余白に対して、大きなテーブル、全開できる木製建具、外のように明るいトップライト、外部を引き込む砂利、風が抜ける窓を作って、空間を定義していきました。
既存の建築を継承するため、構成だけではなく放置されていた家具や照明、建具を再利用し、柱や梁、屋根の裏、土壁も元の表情のまま残しています。古いものを残しつつも新しさも感じられるよう、あえて未完成のような状態で止めています。
建築の「現場に」おいて、竣工に向けて設計者や施工者が試行錯誤しながら少しずつモノを立ち上げていきますが、この場所でも、あえて下地のままで止めておき、みんなで考えながら空間を立ち上げていこうと思っています。
用途を決めていない「余白」をもつこのプロジェクトを「完成に向けて進め続ける」状態=[現場]と呼ぶことにしました。
工事: 改修+増築
用途:住宅
場所:長野,安曇野
期間:2019.05-2020.03
階数:2F
構造:1050 architects
家具:SMOL
fabric:jyu+
施工:野田建設
写真:大竹央祐
長野県安曇野市にある、夫婦+こども6人の住宅です。
みな仲が良く同じ空間で過ごしていて、アウトドアが好きで庭で好き勝手に遊んでいることが多い家族です。
部屋を細かくわけている壁に大きな孔をあけ、吹抜けを設け、家全体が連続する空間にしました。人数に対して収納が少ないので、アウトドアの道具を置く大きな玄関、食材を保管したり洗濯するためのパントリーを増築しています。既存や増築を含め、建物のいたるところに孔を設けることで、どこからでも敷地にアクセスできるようにしています。
孔をあけて人の動線を変えてあげることで、広い敷地にアクティビティが生まれています。工事後半年で、畑、倉庫、ピザ窯、ブランコ、駐輪場が施主の手でつくられました。施主が自分たちで住まいを育てていくためのきっかけをつくった計画です。
工事:新築
用途:2世帯住宅
場所:東京
期間:2016.04-
構造:円酒構造設計
照明:ぼんぼり光環境計画
施工:中央構造
写真:井出野下 貴弘/※佐藤 航平
[生きるための環境]をつくる開口
壁に開口を開けることは、生きるための環境をつくる行為だと思う。内部に風や光、風景が入り込み、暮らしていて気持ちが良いという根源的な住宅。この住宅では、隣地の建物と視線が交差しないように調整した開口と、周辺も関係なしに、この位置にあると光や風が気持ちが良いだろうと感覚的設けた開口もある。その矛盾した両者を同居させることで隣家との間合い、都市との距離感、親と子の距離を離しつつ繋ぐ関係を目指した。
[小さな敷地]としての余白
雑居ビル、マンション、ホテルが建ち並ぶ都心の大通り沿いに計画した2世帯住宅である。外周にテラスや縦動線などを配置した、入れ子のような平面構成になっている。バッファーとしてのテラス、それと連続する屋外階段、大きくゆとりのある内部階段と踊り場をもち、その隙間に各世帯の占有空間、2世帯の共有空間を挿入した。各階のテラスを介して、世帯同士のゆるいつながりを生み出している。
テラスは半外部でありながら、内部的な仕上げで統一し、内部階段と踊り場は、隣地の建物に囲まれた裏手にはあるものの、開口を多数設けることで、外部的な明るい空間とした。また、親世帯の住居である2階と、子世帯の住居である4・5階の間には、あえて用途を規定しない余白の階層を挿入している。
用途のない場所は、この住宅の床面積の半分近くを占め、そこを「小さな敷地」と呼ぶことにした。家の中に小さな敷地をいくつも設けることで、我々が建築を考えるのと同じように、使い手はその場所を自ら設計して生活をしていく。幅広でゆとりのある階段でお茶を飲みながら本を読んだり、部屋の様な大きな踊り場で仕事をしたり、内部の様なテラスでランチをしたり、余白の3階を写真スタジオとして利用したり。
建物に「開口を開け」「小さな敷地」を持つことで本能的な生活の風景を生み出し、機能を超えた「生きるための環境」をつくることを目指した。
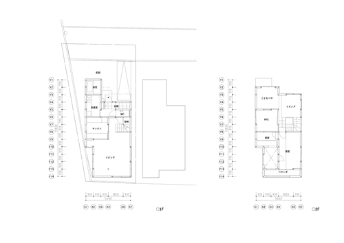
工事:改修
用途:住宅
場所:大阪
期間:2020.01-
階数:2階
家具:SMOL
fabric:jyu+
施工:舩橋工務店
写真:大竹央祐
大阪の都心部から少し離れた淀川沿いの敷地に、都市に住む夫婦が日中は会社で働き、夜遅くに帰宅する生活を支える住まいの提案です。
1階がとても暗く、50㎡程度しかない長屋を、明るく豊かな住まいに変換していきました。
「玄関とキッチン」や「廊下と収納」等、機能を重ねることで効率的なプランとしています。また、1階の明るさを確保するために床に孔をあけながら、一部にはルーバーをかけて居場所をつくっていきました。お風呂や洗面台は一体のオープンスペースとする等トイレ以外の壁を無くすことで、住宅全体に光や風がいきわたる構成としました。
機能を重ねつつ、床に孔をあけ、お風呂や洗面台はオープンな空間、廊下は収納となり、いくつかの吹き抜けと一部にはルーバーをかけて居場所をつくっていきました。
従来のLDK的な住宅ではなく、必要な機能のみで構成されている住宅です。リビングという空間を無くし、その分をお風呂や洗面スペース、寝室など「生きるための機能」に面積やコストを割いています。使用される素材や設備についても、特別な場所として感じられるようなものを選定しています。部分的に自主施工としたり改修コストを調整しつつ、小さいながらも情報量の多い空間としました。
単なる改修ではない、ラグジュアリーな空間を住宅に内包させることで、日々の暮らしがアップデートされることを目指しました。
共同設計:OpenA/馬場正尊+加藤優一
工事:改修/用途変更
用途:宿泊/オフィス/飲食
場所:佐賀県佐賀市富士町
期間:2017.09-2019.11
階数:4階
構造:RC造
サインデザイン:UMA/design farm
施工:富士建設
写真:阿野太一
10年程度放置されていた小学校を、宿泊施設・サテライトオフィス・地域交流施設などの複合施設にリノベーション/用途変更を行い再生した。地方都市の廃校は、活用の運営主体がいないため、放置されている場合が多い。この富士小学校も、長年放置され続け、エリアの風景にマイナスのイメージを与えていた。
本プロジェクトでは、その課題を突破する方法として、「企画・設計」に加え、「運営」をセットにしたプロポーザルが行われた。条件の良いところであれば、PFI(Private Finance Initiative)も選択肢に上がるが、今回の事業規模では、大手のゼネコンが参画する可能性も薄く、「設計」と「運営」というソフトだけを切り離した形での募集となったのだ。そのおかげで、運営を担う地元企業と僕らのような小さな設計事務所が組んで、クリエイティビティやデザイン、機動力で勝負して再生することが可能となった。
この手法は日本中の地方都市の廃校活用に展開できる可能性が高い。地域の価値を上げるために、建設費は行政が負担、大手のゼネコンではなく地元の建設会社でも参加できるようなスキームにすることで地域経済にも貢献でき、地元の企業が運営を行うことにより、既存産業との連携も進む。プロセスとして、新たなモデルになるのではないかと考える。
デザイン要素の検討に当たっては、エリアの価値と原風景の顕在化に軸を置いた。
佐賀県は人工林率が日本一であり、木材の活用が求められている地域であるが、このエリアは県内でも有数の木材の産地だ。そこで、地元の企業と協同して地域産材を積極的に活用することにした。むき出しのコンクリートと暖かな木材のコントラストで全体のトーンを決め、建物自体がエリアの価値を表現するショールームのような仕掛けにしている。
山と川に囲まれた敷地には、大きな樹木や岩が点在しており、それもひとつの原風景になっている。家具やサインは、量感のあるデザインとし、建築内部だけでなく敷地内にも散りばめることで、人工と自然、古いものと新しいものをつなげる要素として機能させている。
また、地域の方が訪れた際、面影を感じられるように、かつての学校のスケールや素材を細かく残している。新しい用途を実現するために必要な改修箇所においても、可能な限り既存の素材を活かすとともに、巾木・建具・建具枠などのチリや寸法を既存の学校のスケールに合わせてひとつひとつ決定していった。
シンプルなリノベーションだが、そこに楽しげなアクセントとしてグラフィックデザインを有効に用いた。グラフィックデザインを一緒に担当してくれたのがUMA/design farm。彼等のデザインは、グラフィックと言うよりも、それ自体がプロダクトや造形物のように振る舞ってくれる。僕らはそれを「オブジェクティブグラフィック」と読んでいる。銀座で行われたUMAの展覧会でも、グラフィックの枠を超えた展開が感じ取れる。(馬場正尊+加藤優一/OpenA + OSTR)
工事:新築
用途:住宅
場所:大阪
期間:2020.05- 2021.04
階数:2階
施工:大倉
構造:1050architects
写真:大竹央祐
建売住宅を「リノベーション」するように設計した住宅。
設計当初よりハウスメーカーが施工することが決まっていたため、ハウスメーカーが持つ言語の整理・読み替えをすることで住宅をつくることができないかと考えた。
施主の要望を聞いていくと、いわゆる建売住宅的なプラン(大きなリビング、寝室が3つ、洗面とWCが別、駐車スペース・・・等)でも十分対応できることが分かった。ただ敷地の西側にある大きなマンションや、南側にある駐車場との距離、南西方向の畑への眺望など、周辺環境との関係を整理する必要があった。建売住宅的プランをベースとしつつ、配置や断面や開口をコントロールすることで、敷地に対応した住宅をつくる。
プランはそのままに、スキップフロアとすることで無駄な廊下をなくし、新たな居場所をつくった。少しずつ床があがることで1階のリビングに変化が生まれる。求められた3つの寝室のうち1つはオープンに、もう1つは建具によってライフスタイルに応じて開いたり閉じたりできるようにした。
そしてプライバシーに配慮しつつ、内外いたるところに開口を設けた。一日中いろいろなところから光が入り、どこにいても家族の気配が感じられる空間となる。リビング上の光を取り入れるための塔と室内窓、スキップフロアや蹴上の無い階段により多方向に視線が抜けていくことで、面積を抑えつつも広がりのある空間とした。
仕上についても、既製建具や量産クロス、クッションフロアなど極力ハウスメーカーの仕様にならった。構造躯体や木との関係を整理することで、コストを抑えながら変化のある空間をつくった。
既存住宅をリノベーションするように設計を進めたことで完成したこの住宅は、新築でありながらすでに住んでいたような、「ふつう」とは少し変わった空間となった。ベースとなるプランを活用しつつ、汎用的な素材を使うことはコストや工期に対して効果的で、一般的な価値観をもつ施主と建築家をつなぎやすいように思える。
建築家とハウスメーカーの協働の可能性を感じたプロジェクト。
工事:改修
用途:住宅
場所:奈良
期間:2020.09- 2021.09
階数:平屋
施工:コムウト
構造:1050Architects
写真:大竹央祐
生駒市宝山寺の参道沿いにある古民家を、絵本のギャラリーをもつ週末住宅に改修する計画。
車が寄り付けられない敷地のため、敷地内の材料を再利用することでコストを抑えつつ、この建築でしかありえない新たな価値をつくれないかと考えた。
解体された建築は材料に変換される。土壁は床を敷き詰める三和土として、古びた畳は和紙を貼ることでテクスチャーのある壁として、天井や床を支えていた木下地は細かく刻まれてモザイクタイル床として使用される。
壁や天井や床が取り除かれ、かつてそこにあった材料による新たな仕上げで包まれた大きな展示室が生まれた。今後は余った古建具で展示什器がつくられ、木材が庭の小屋となる予定である。
建材は材料にまで還元され、新たな価値をつくる。古いものがあたらしいものに変わるのではなく、地続きの建築であることを意識しながら計画した。
工事:新築
用途:共同住宅
場所:大阪
期間:2020.05- 2021.11
階数:3階
施工:いなせ建設
構造:海野構造研究所
写真:大竹央祐
数多くの飲食店が立ち並ぶ天満エリアに隣接した池田町という敷地で、木造3階建ての集合住宅を計画しました。
3方向を隣地建物に囲まれた長細い敷地だったため、いかに明るい内部空間をつくるかが大きなテーマでした。
1フロア1世帯、合計3世帯という構成で、中心のボイドと各階にアクセスするための廊下・階段により全体に光と風を通していくこととしました。
水回りや寝室の構成は共通しながらも、各フロアで異なる住環境に合わせた形式を作っています。
本計画は初期にホテルにしたいという要望から始まったプロジェクトでした。
しかしプロジェクトが始まってすぐにコロナウィルスが流行し、様々な規制の中で進める必要がありました。当時大阪はインバウンドを見込んで、ホテルが乱立しており、その流れでのホテル計画でした。状況を見るとかなり厳しい戦いになるだろうと見越して、我々は新たな提案を行いました。
具体的にはホテルをやめて複合建築を提案しました。
1階が商業、2階がオフィス、3階が住居となる建築です。さらに敷地が鰻の寝床のように、細長い形状をしているので、手前と奥を中庭を挟んで2つに分けました。それぞれのフロアが2分割された事で6つの空間ができました。
それらは、個々で借りる事もできるし、ニコイチで借りる事も可能です。今後どういった世の中になるか、どういった需要があるか全く不明の中で、可能な限り選択肢を増やし、かつ今後どのようにも用途変更が可能な建築のあり方を提案しました。
その後、基本設計までは上記の案で進んでいたのですが、世の中の様子がだいぶ見えて来た頃、実施設計に入る直前で共同住宅運営をする事が決まりました。
全く用途が変わったのですが、本計画は元々どのような用途に変更されても大丈夫なように計画していたため、基本構成は変わらずに共同住宅として改たに計画しなおしました。
1フロアで1世帯、合計3世帯という構成にはなりましたが、真ん中のボイドを介して手前と奥が生まれる構成は踏襲されました。さらに、各フロアで全く異なる住環境が生むため、
1階は大阪の長屋形式を踏襲し、ダイニングインの玄関、その奥に中庭があり、お風呂、寝室と続き、さらに庭を作るという構成になりました。
2階は廊下を通って、玄関に入る、いわゆる大阪のどこにでもあるワンルームの形式を踏襲しつつ、敷地形状に馴染ませました。
3階は最も光が多く入り、周りに遮るものが少ないので、ペントハウスの様なラグジュアリーな構成としました。踊り場を庭的に利用し、さらにテラスからは池田町の街並みが見渡せます。
このように全く異なる3層のフロアを廊下や中庭や階段が貫通していく事で、全体をまとめあげました。
池田町の雑多な要素を持ちつつ、全体性があるという特徴をこの集合住宅に取り入れる事で、どこにもない、しかし池田町には馴染む建築のあり方、集まって住まうという有り方があると考えます。
企画・プロデュース:株式会社リバース / サウナイキタイ
内装施工:株式会社アトリエ ロウエ
バス整備・改修:神姫商工株式会社
用途:移動型サウナバス
写真:サウナイキタイ、大竹央祐
サバスとは、兵庫県にある神姫バスで実際に路線バスとして利用されていた車両をサウナに改造した移動型サウナです。
ピカピカに蘇らせるのではなく、バスの良さはそのままに使えそうなものは活かしながらサウナへとアップデートすることで、「路線バス→サウナ」でしかつくれないサウナ体験にできるのではないかと考えました。バス、サウナそれぞれの体験を重ね合わせることがサバスをつくっていくうえでの指標のひとつとなりました。
まず、バスにサウナを挿入することは、敷地があって既存建物があるリノベーションとは違う方法でアプローチする必要がありました。
サウナのクオリティは当然ながら、バスは動くし、揺れるし、搭載できる荷重の制限もありました。法規も建築基準法ではなく、車検をクリアする必要があります。既存のバスもまともな図面はなく、よくわからないパーツや点検口もあったりして、それらを一つずつ実測・検証を繰り返して現場で調整していきました。
既存建物をリノベーションすることと同様、そういった「路線バス」というコンテクストを読み込みながら「サウナ」へと変換していきました。
たとえば路線バスの狭さは、サウナに変換することで「熱」という「価値」に変わります。フラットな床をつくるのではなく、既存床のレベル差をそのまま生かすことで天井との距離が変化します。座る場所によって好みの熱さを選択できます。ストーブの熱を直に感じられる1列目や、床が最も高いことで天井に近い(最も熱を感じられる)2列目、ベンチ形状により寝ころべる4列目は排気があることで最も対流を感じられます。
移動する豊かさを感じられるよう、窓は極力そのままのサイズで残しました。到着する場所によって、自然の中にいるようなサウナや、都市にさらけ出されたようなサウナにもなります。
バスの前方部分は前室として休憩スペースや荷物置きとして使うことができます。元々のバスの内装や、ベンチの再利用で構成しています。
外観についても、神姫バスの車体から外観のベースは大きく変えることはせず、サウナの要素を追加することでよく見るとバスなのにサウナを感じられる仕様にしています。本来車体にはオレンジ色のラインが1本のみ引かれていますが、サウナと水風呂の関係性を表現する為に水色のラインを一本追加しています。
同じ座席レイアウトや既存窓を生かしたサウナとすること、半分の空間はほぼバスの内装を残すことによって、バスに乗っているのにサウナにいる、という不思議な感覚が味わえたらいいなと考えました。
サバスでは元々バスで使われていた廃材を再利用しています。施工現場がバスの整備を行う工場で、使われなくなったバスのパーツが山ほどあったので、宝探しのように再利用できる材料を検討していきました。
座席についていた手すりに麻を巻いて再利用したり、ロウリュウのためのボタンも元々の「降ります」ボタンです。吊革を加工して温度計に、整理券ボックスはアロマ水のタンクに、水が出てくる部分は窓を清掃するウォッシャーノズルを加工しました。休憩スペースのベンチもかつての座面をそのまま使っています。その他、建具の持ち手や換気口、照明などあらゆるパーツを再利用しています。バス整備士との現場でのディスカッションが、路線バスを生かすための細かいディテールにつながっています。
サバス自体には水風呂がなく、いろいろな場所や風景に移動して組み合わせて初めて完成する、ある意味ではずっと未完成なサウナです。運用開始して1年、日本全国で使われている様子を見ていると、場所ごとに多種多様な体験を生み出していることが分かります。
機能が「移動」することの可能性を再発見でき、どんな風景でもなじむような「バスでありサウナであり建築」を目指しました。
工事:改修
用途:住宅
場所:東京
期間:2021.05-
構造:1050 architects
fabric:Haruka Shoji Textile Atelier
施工:月造
写真:大竹央祐/OSTR
誰もが分かる/ネコの様に住まう
地形豊かな木造密集地に建つ建築家自邸の計画です。誰もが分かるとは人間を超えて、本能的に生きる動物でもわかる状態です。その延長としてネコの様に住まう事に興味を持ちました。私は都内の木密地域で育ち、幼い頃は家と家の間の塀を縫うように遊ぶ生活をしていました。そういった動物的な感覚を取り戻せる家を考えられないかと、自らの住処を計画しました。
敷地は旗竿で、かつ傾斜地なため、敷地内(外部)に階段を有します。階段はこの土地の豊な地形と連続した、いわば街の延長として現れます。坂道や階段といった無意識のうちに体験する街の特性をそのまま住まいに取り込めないかと考え、連続的に繋がる外階段がそのまま家の中に入り込み、傾斜がそのまま立体となる構成としました。旗竿であるため1階は四周建物や隣地の擁壁に囲まれ、それはどこか心地良い暗さや奥性を生み出していました。階段を登り2階に上がると、谷戸地形の街並みのおかげで開けた住宅街が現れ、この街のポテンシャルを最大化した風景が現れます。
私達は普段、様々な与条件の解法として住まいや建築を提案していますが、誰もが分かる事、生きるとは何か、を考えた時に行き着いた先はネコの様に住まう事でした。ネコは心地よい場所を見つけるのが得意です。食事は昼間の光が入る明るい場所、お風呂は擁壁に囲まれた安心できる場所、仕事場は隣地の庭を眺めながら過ごす場所、寝室は朝日の気持ちの良い場所、といったように動物的感覚を取り戻す様に居場所をつくりました。
かつて槇文彦が説いた様に東京の都市には奥性が潜み、人は感覚的に様々な奥行きを感じながら生活しています。私は地形とその先にある旗竿の奥に住まう事で東京や木造密集地ならではの都市を、ネコの様に生きる事を目指します。
工事:改修
用途:店舗
場所:大阪
期間:2021.08- 2022.04
階数:2F
施工:嵩倉建設
構造:1050Architects
カーテン:jyu+
写真:大竹央祐
大阪日本橋の繁華街にある木造2階建の建物に、クラフトビールやハードサイダーを楽しむ立ち飲み屋をつくるプロジェクト。
設計を開始したタイミングが緊急事態宣言の最中であり、今後どうなるかわからないような状況だった。そのため、ひとまずは1階だけを改修することとし、十分な厨房機能は確保しながらもどんなことにも対応できるような場を作っていくことにした。
人通りの多いメインストリートと静かな雰囲気の小道に挟まれている長屋形式の建物だったので、まずは中庭と外壁のカタチを調整して建物を通り抜けできる「道」をつくった。
帰り際にふらっと一杯だけ飲む人、何人かで立ち飲みを楽しむ人、立ち飲みに疲れてちょっと腰掛けたい人、座ってじっくり料理をたしなむ人、ビールだけ買って帰る人・・・。さまざまな飲み方ができるように、多様なカタチのテーブルを「道」に沿って配置していく。まちの賑わいを感じられる場所から落ち着いて飲める場所まで、グラデーショナルに場所が連続していく。ビールを注ぐためのタップはまちからもどのテーブルからも見えるように「道」の中心に置いた。
クライアントが西成で就労支援も行っている会社なので、テーブルの仕上を彼らにやってもらうことにした。ビールの製造工程で大量に余る麦芽カスとモルタルを混ぜたものを天板に塗りこみ、やすりで徹底的に磨いて仕上げた。そのほかの仕上げはそのまま既存を残していたり、既存に合わせたものを新たに貼ったりと、どこまで手を加えた場所なのか曖昧にしていくことで、まちにはじめからあったような場所にしたかった。
厨房機能以外はあえてラフに仕上げていたり、外壁は既存そのままだったり、さらには建具もいれずに半端なカーテンで仕切っている。将来2階の活用を考えたときに、今回の改修が邪魔にならないようなリノベーションにした。
そうやってできたこの「道」は、以前からずっとあったような、まちにとってなじんだ場所になり、この日本橋という場所に放り出されて飲んでいるような、まちの雰囲気をダイレクトに感じられる気持ちのいい(最高に酒がうまい)場所になった。
共同設計:sna
工事:改修
用途:シェアオフィス
場所:東京都世田谷区
期間:2022.08-
施工:sna/OSTR/Team
写真:OSTR
【ラッピングする】
下高井戸駅の商店街に面する3階建てビル2階にシェアオフィスを計画しました。OSTR東京事務所でもあり、シェアオフィスとして他メンバーも入る事を想定していたので、自主施工を行い、収益を上げる計画としました。そのため手数は少なく、かつ最大限の豊さを獲得する方法を考えました。
手法として行ったのは、既存をラッピングするという事です。まずは最低限部屋を解体し、広さを確保しました。次に既存空間の持っていた薄暗さを解消する方法として、既存の床にFRPを流し込み、天井にはアルミホイルを貼ることで、少ない窓辺の光をなめる様に内部に光を取り込みました。床であれば、畳の凸凹、天井のクロスの細かい質感、水回りのタイルの目地など既存をそのままに、上から丁寧にラッピングする事で、既存の姿を新しい形で読み替えていきました。
古いものが古いものとして現れるのではなく、古いものが新しさを感じさせる、常に現在進行形の空間がある。ビルの2階であっても、内部に鈍く映り込んだ、商店街や隣のビルの階段越しに入り込む風景を微かに感じられる、そんな空間を目指しました。
工事:内装
用途:飲食店
場所:東京
期間:2022.8-2023.2
施工:玄翁
写真:OSTR/井出野下 貴弘
1つの店舗形態でありながら、隣り合う2つの店を持つ鮨屋の提案です。
江戸前鮨の歴史を調べると、大将がお店(内店)を構え、弟子が屋台で修行を行う形式がありました。小資本で始められるという点から江戸では多くの屋台が町に溢れていました。屋台の形式は戦後の公衆衛生法の影響により徐々にその姿を失いましたが、職人と客が対面し食事を楽しむという形式は江戸時代から変わらない現在に通じる姿です。
今回の計画としては
①かつての2つお店を持つ形式を現代的に踏襲しアップデートする。
②職人と客が対面し食事を楽しむという江戸前鮨の根本にある形式を引き立たせる。
という2点を計画の中心に置きました。
2つのお店を持つ事で、最初にメイン空間でお鮨を頂き、2次会利用で一旦外に出て隣の離れに行くなど、店を移動しつつ食事を楽しむ事が可能になります。また離れは特別な時を過ごすために利用したり、大将はメインで握りつつ、弟子が離れで家族連れに向けて握るなど、多様な使い方を想定し計画しました。
職人と客が対面する空間はどちらもカウンターに重心を持った空間ながら、メインは土壁や網代、タイル、ラーチ合板、シナの下見張りなど、多様な素材を背景に食事を楽しみます。離れはカウンターのみが空間に浮いた状態にする事で、食事とそれを楽しむ人々だけがその場にあるような空間を目指しました。
用途:温浴施設
場所:大阪
期間:2022.01- 2023.04
階数:11Fのうち4F
施工:HENDERSON株式会社
写真:大竹央祐
心斎橋商店街に面した元ボーリング場の11階建てビルの4階に、サウナを中心とした温浴施設を作るプロジェクトです。
テナントビルによる制約も多く、屋外空間もない閉鎖的なコンテクストの中で、「日常の延長」としてのサウナにするために、人それぞれで多様な動線が生まれる「庭のような建築」を考えました。
2つの浴室の中には、7つのサウナ、2つの風呂・4つの水風呂、外気を感じられる休憩スペース、はなれのような黙浴スペースで構成されています。
7つあるサウナは、風景を切り取る大きな窓があるサウナ、川に直接飛び込めるサウナ、土手に寝転ぶようなベンチがあるサウナなど、庭との距離がそれぞれ違うサウナを作っています。
風呂や水風呂や掛け湯は、かつてこの場所に流れていた長堀川のように、連続した水系として浴室全体を横断します。川によって対岸が生まれ、橋や飛石が置かれ、川に浮かぶ小屋や土手など、川的な風景が立ち上がります。「庭のような建築」に呼応するように、さまざまなランドスケープが感じられるようにしています。
利用者にとっては行くたびに発見があったり、運用側にとっては新たなチャレンジを考えられるよう、可変性を持たせる計画としています。
2つの浴室は桟橋部分の扉によって1室空間にもなります。この浴室とは別に、グループで貸し切れるサウナもあります。ラウンジは使い方を規定しすぎないように、床の段差のみで構成しています。
どの順番でサウナをめぐるか考えたり、好きなところに腰かけたりテーブルとして使ったりと自ら場所を探すことは、まちの体験とも連続します。
今後長く営業していく中の変化を受け入れる「プラットフォーム」としての空間づくりは、庭づくりと言えなくもない(はず)。エレベーターに乗って4階にあがっても、まちにいる感覚がグラデーショナルにつながっていくことで、「すばらしい日常」を感じられるサウナを目指しました。
工事:新築
用途:住宅
場所:兵庫
期間:2022.07- 2023.10
階数:2F
施工:コハツ
構造:IN-STRUCT
写真:大竹央祐
去年夏から設計し、先月引き渡した住宅。
小さな敷地で谷のような場所に光が差し込み風が抜ける家をつくった。
2人の親子が住むこと、いろいろな使い方をする1階を設けること、ほかにも家があるのでここはシンプルな住まいがよいこと、ずっと大切にしている車を置くことが条件だった。
周辺に開けるような場所ではないので、敷地目いっぱいに建てつつも中に光庭を設ける構成にした。その光庭を中心に、生きるための小さなスペースを周囲に配置していった。
構成としてはそうなんだけれど、できたものはもう少し印象が違う。
光庭としてつくったものは、「庭」というよりも「都市」の残余のようなものとなった。
そう感じるのは、その残余を通して隣の長屋の外壁やそびえたつマンションの洗濯物だったりが垣間見えるからかもしれない。本来自分の家の外壁が、別の人の家にも見えてくる。隣の長屋がこちらの家の延長にも見える。うちの外壁やサッシまでが都市に属するもので、たまたま都市により切り取られた内部空間とも感じる。
この場所に独立した建築をつくるのではなく、周辺との関係から違和感のないようなものにしたかった。外壁は隣と合わせたり、サッシも大きさや色をサンプリングした。
高低差のある土地なので周囲では擁壁が目立つ。それも置いてみた。もともとこの場所は長屋が立っていたので、長屋的な筒状のものが巻き込んでいるようなイメージも持たせた。坂道や路地的なスケールも引き込み、道の建築化っぽくもある。
どうつくっても限りある面積の中で、いかにして広がりのある住宅ができるか。いろいろな方向へ視線が抜け、その先にはうちと同じ(ようなもの)が目に入る。都市までが家とも見えるし、都市の谷でひっそり住んでいるようにも見える。光庭は光を取り入れ、風を取り込む装置でありながら、都市と家を接続するための「部屋」になる。
真ん中に庭があるという形式を消したかったというのもあるし、広がりを考えるうえで意識をいろんなところに飛ばしたかった。それぞれに場所をつくったけれど、それが固定化されるわけではなくいろんな場所に広がっていく。タイルは庭にはみ出すし、外壁はリビングまで侵入してくる。天井に貼ったシナが階段の立面に飛び火する。外壁の青い塗装がキッチンのタイルと呼応する。小さな伏線が(補助線?)貼られているイメージ。
その場その場で必要そうなマテリアルを選定していった(全体のルールかもしれないし、コストかもしれないし、施工性かもしれないし、スペックかもしれない)。
現場で出てくる施主の要望も拾い上げていった(丸い手すりがほしい、布をかけたい、ステップがほしい・・・)。その要望をこちらのルールに落とし込みすぎず、素直に対応していった。
ここまでいくと、なにがなんだかよくわからなくなってきた。
完成したのかよくわからない状態は、むしろ住人を違和感なく迎え入れる気がする。引き渡し時が完璧で、そのあとはどんどん減点されていくような建築ではなく、どこまでが誰のコントロール化にあるか分からない場がいいのではないか。明確なルールがあるわけではなく。
いますでに施主が適当にいろんなモノを持ち込んでいる。
建築がある程度背景になり、生活だけが残る。
共同設計:礒谷哲也
工事:改修
用途:住居
場所:東京
期間:2023.04-2024.4
構造:RC造
施工:バレッグス
写真:OSTR
-となり合うものごとを考える-
初めて現地を訪れた際、築年数の経ったマンションの一室は、2年ほど前にリフォームされており、まるで新築のようにピカピカで、すぐにでも住める状態だった。施主は南北の両面に抜けるバルコニーからの眺めを気に入り、ここに新たな住まいをつくることを決意した。しかし改修計画を始めようとすると、内装や設備があまりにも新しく、どこから手を加えるべきか判断に迷った。
できるだけ単純な方法で、この既存の“ピカピカ”とこれから生まれる“新しい環境”とを重ね合わせられないかと考えた。そこで部屋の中央に大きな中庭を設けることにした。中庭といっても、既存玄関のスケールを約6倍に拡張し、土間とも玄関とも中庭ともいえる曖昧な場とした。この中庭はLDK・個室・水回りのほぼすべてに隣接し、施主は常に住まいの中心である中庭と関わりながら生活する。建具を開け放つと南北のバルコニーが連続して一体となり、空間全体がひとつの大きなバルコニーのようにも感じられる。個室は中庭と既存バルコニーの両側に囲まれ、明るい光の中で目覚め、風呂上がりには風が通り抜ける心地よい休憩の場にもなる。
もう一つの試みは、扉を開けるたびに新しい風景が現れる状態をつくることだ。中庭に面した部屋、改修前のまま残した部屋、かつて繋がらなかった空間同士が行き来できるようにし、収納扉を開けると働く場が現れる。このように隣室が既存なのか改修された部屋なのかが交錯し、扉を開くたびに異なる世界が次々に現れる風景を描いた。同時に既存の部屋に新たな扉を設けたことで、動線の自由度が増し、空間全体に回遊性が生まれた。
全体は仕上げの質感や家具をわずかに補修・追加することでバランスを整えた。部屋の内側だけで完結させると、どうしても「マンションの一室」という閉塞感が残るため、外に広がる風景のスケールや色彩に合わせ、一室を超えた広がりを感じられるしつらえとした。
施主がこの部屋を選んだきっかけが、窓の外に広がる風景だったように、周囲の景色や日常の風景が内と外の双方に立ち現れ、互いに呼応し合う。そんな連鎖を思い描きながら、検討を重ねていった。
用途:レストラン
場所:京都
期間:2023.08- 2024.06
階数:2F
構造:IN-STRUCT
施工:清武WORKS
写真:大竹央祐
京都・麩屋町綾小路通の角地に立つ元お米屋兼クリーニング屋を、ナチュールワインや炭焼きを楽しめるレストランに改修するプロジェクト。
土地とは切り離されたように建っていた建物に対して、歴史や街並みに連続するように手を加え、京都的な風景と呼応するような建築にしようと考えた。
まず、建物をL字にくりぬいてみる。
周辺の外壁を引き込み、外構のように砂利や平板を敷き、そっけなく階段を取り付けて、元々あった(かもしれない)通りのように設えた。そこにさらに道沿いにはばったり床几のようなベンチを(ばったりはしないけれど)、火袋のような天高とトップライトを、通りに面して台所を配置し、トオリニワのような空間をつくった。
それにより、L字のトオリニワと4面接道した建築という構成になる。
東西南北どちらの方角からも人が歩いてくるということもあって、そこかしこに大きな穴をあけて、どこからでもお店の雰囲気を感じられるようにした。
にぎわいが外にあふれだすように、通り庭に面する建具は大きくあけ放つことができる。元々外的な設えのトオリニワが外とつながり、まちと一体化する。
まちからグラデーショナルにずるずるとつながっていく空間に、さらに多様な飲むための場所をちりばめていった。シェフと対話できるカウンター、内外を横断してつながるベンチ、通り庭の奥にひっそりとある個室のようなテーブル。
2階には、座敷をつくった。建具を全部開放すると川床のような解放感のあるスペースに変わる。(見える景色は駐車場だけれど、この通りに昔は川が流れていたらしい)
トオリニワと建築という構成を、建具や居場所や素材によってゆるくひもといていく。既存と改修部分をあいまいにしながら、きれいすぎない建築にする。京都という場所に元からあった風に装いながら、まちと共にお酒を楽しめる居場所になった。
共同設計:山田侑輝
工事:改修
用途:住居
場所:東京
期間:2023.06-2025.3
構造:RC造
施工:バレッグス
写真:OSTR
-窓辺/ランドスケープの余剰-
壁を立て部屋を仕切るのではなく、「窓辺そのものが居場所となる」という一点だけを計画の中心においてみた。
自ずと玄関、水回り、収納が部屋の中心へと集まってきた。それら機能は木のハコとして抽象化され、天井のコンクリート梁(構造機能が抽象化された存在)の凹凸と寄り添い、離れ、呼応しながら、マンションの一室の中にランドスケープを形成していく。その二つのランドスケープの余剰は機能からはみ出た窓辺やスキマ空間などの純粋な居場所として現れた。
それぞれの窓はその大きさ、方角、天井高さ、使い方などによって様々な風景を描き出し、ハコと天井のランドスケープは、室内全体に抜けや見え隠れを生み、部分でありながら同時に全体でもある状態をつくり出す。
意図せず残された場所や、なんとなく存在してしまった余白が心地よい、ということがある。そんな「原っぱ」のような窓辺やスキマ空間が、この住まいの中にいくつも生まれた。
企画・プロデュース:株式会社 リバース/サウナイキタイ /静岡鉄道
用途:移動型サウナバス
写真:サウナイキタイ/OSTR